房产 59049 Engomi, 尼科西亚 / 49699

尼科西亚活力四射的埃克莫米现代公寓。

价格 186,500
预估月供 642 /月
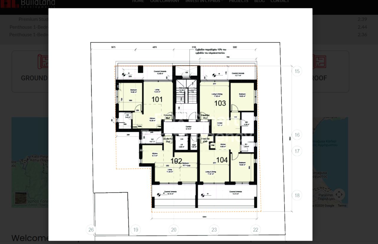
关键信息 1 卧 50 m²

概览

社区 Engomi
地区 尼科西亚
房产类型 住宅
卧室 1
建筑面积 50 m²
编号 49699

房产描述

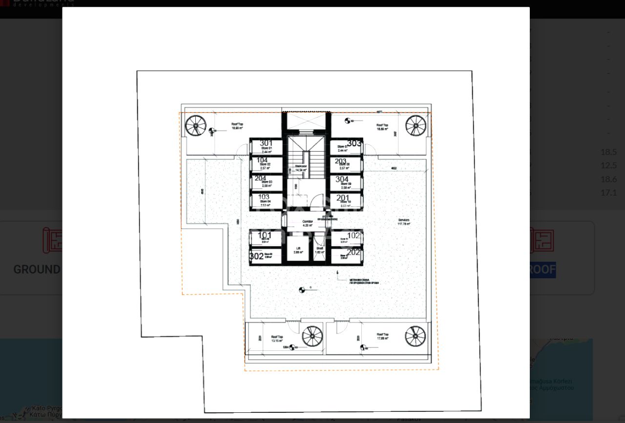
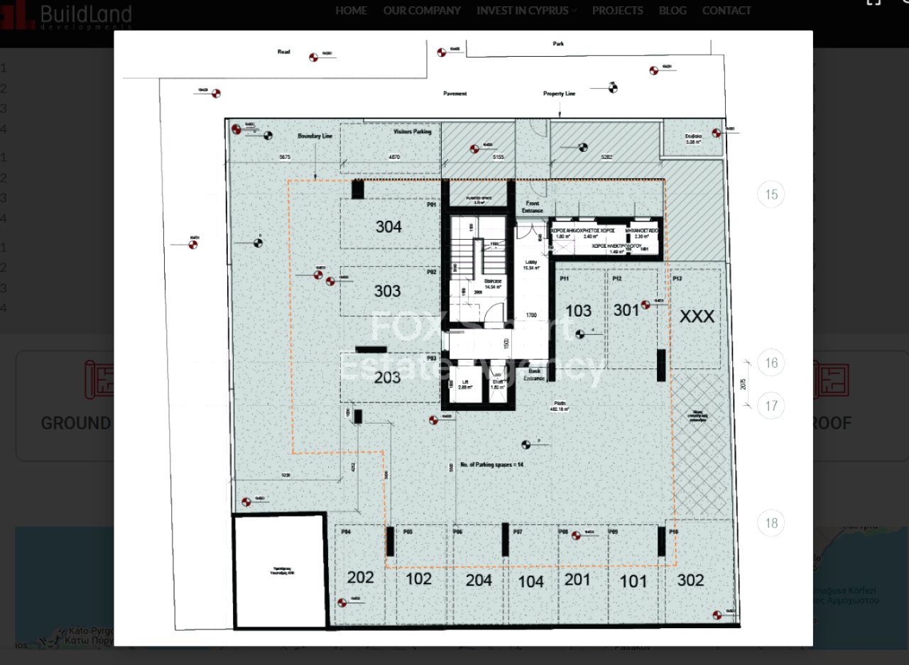
这个时尚的三层住宅楼包括12个一居室公寓和单间,旨在提供舒适和社区感,便捷通往大学、咖啡馆和公共交通。

房产亮点

外观

阳台/门廊

一般功能

没有家具

服务

空间

升降机/电梯 储藏室

可持续性 / 能源

能源评级 (EPC)
A <= 0.5
房产位置地图

按揭计算器

利率
月供
总利息

过户费用

个人过户费 4,060
联名过户费 2,963
印花税 281

仅供参考费用。购买前请咨询法律和财务顾问。

周边

附近机场
附近海滩

此类别中暂无附近地点。

教育
葡萄酒庄

此类别中暂无附近地点。

Engomi 的交通出行