Immobile 59354 Zakaki, Limassol / bui002n1/blockc

Appartamento 1 camera 51 m2 + 13 m2 veranda, piscina, palestra, sauna, Zakaki.

Prezzo 286,000
Mutuo stimato 985 /mese
Dati principali 1 Cam. 51 m²

Panoramica

Comune Zakaki
Distretto Limassol
Tipo di immobile Appartamento
Camere da letto 1
Superficie costruita 51 m²
Riferimento bui002n1/blockc

Descrizione dell'immobile

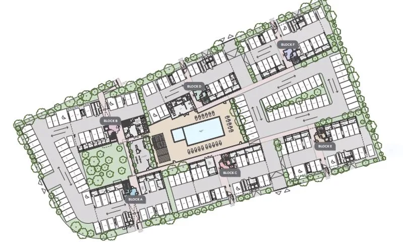
Luminoso appartamento con una camera in un progetto di sei blocchi in comunità recintata a Zakaki. 51 m2 interni e 13 m2 di veranda coperta, layout open space per soggiorno-pranzo-cucina, camera principale con armadi a muro e bagno familiare. Il complesso offre piscina condominiale, palestra completa e sauna. Immobile non arredato con predisposizione per aria condizionata; pochi minuti da spiaggia e Marina di Limassol. Classe A.

Punti salienti

Caratteristiche generali

Negoziabile Titoli di Proprietà

Piscina

Piscina comune

Sostenibilità / Energia

Classe energetica Dati energetici in attesa

Posizione

Apri nelle mappe
Mappa della posizione

Calcolatore mutuo

Tasso d'interesse
Anni
Rata mensile
Interessi totali

Spese di trasferimento

Imposta di trasferimento individuale 8,040
Imposta di trasferimento congiunta 5,450
Imposta di bollo 480

Solo costi indicativi. Consultare un consulente legale e finanziario prima dell'acquisto.

Nelle vicinanze

Aeroporti vicini all'immobile
Spiagge vicine all'immobile
Istruzione
Cantina vinicola

Nessun luogo nelle vicinanze disponibile in questa categoria.

Spostarsi a Zakaki