Immobile 58169 Avgorou, Famagosta / 49431

Sviluppo esclusivo di 17 ville contemporanee.

Prezzo 255,000
Mutuo stimato 878 /mese
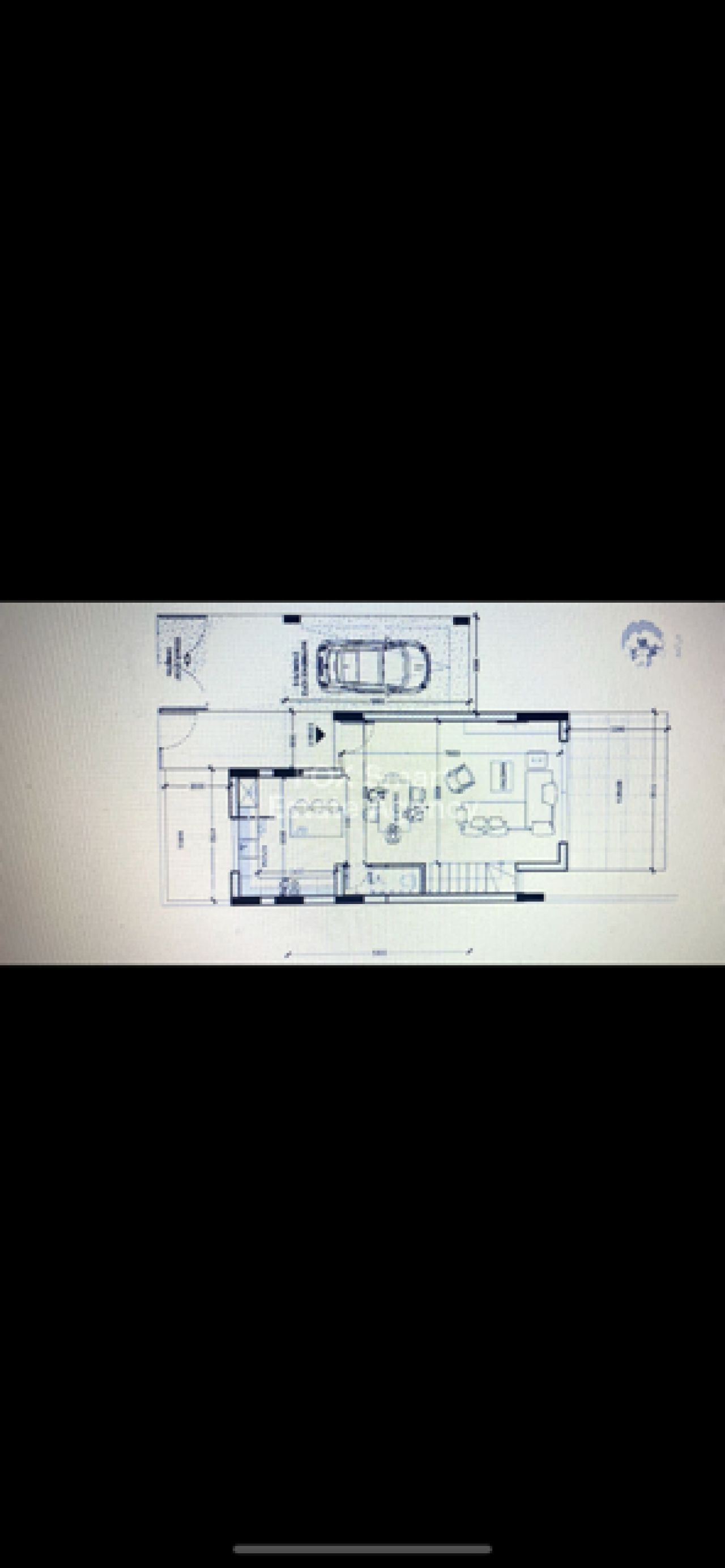
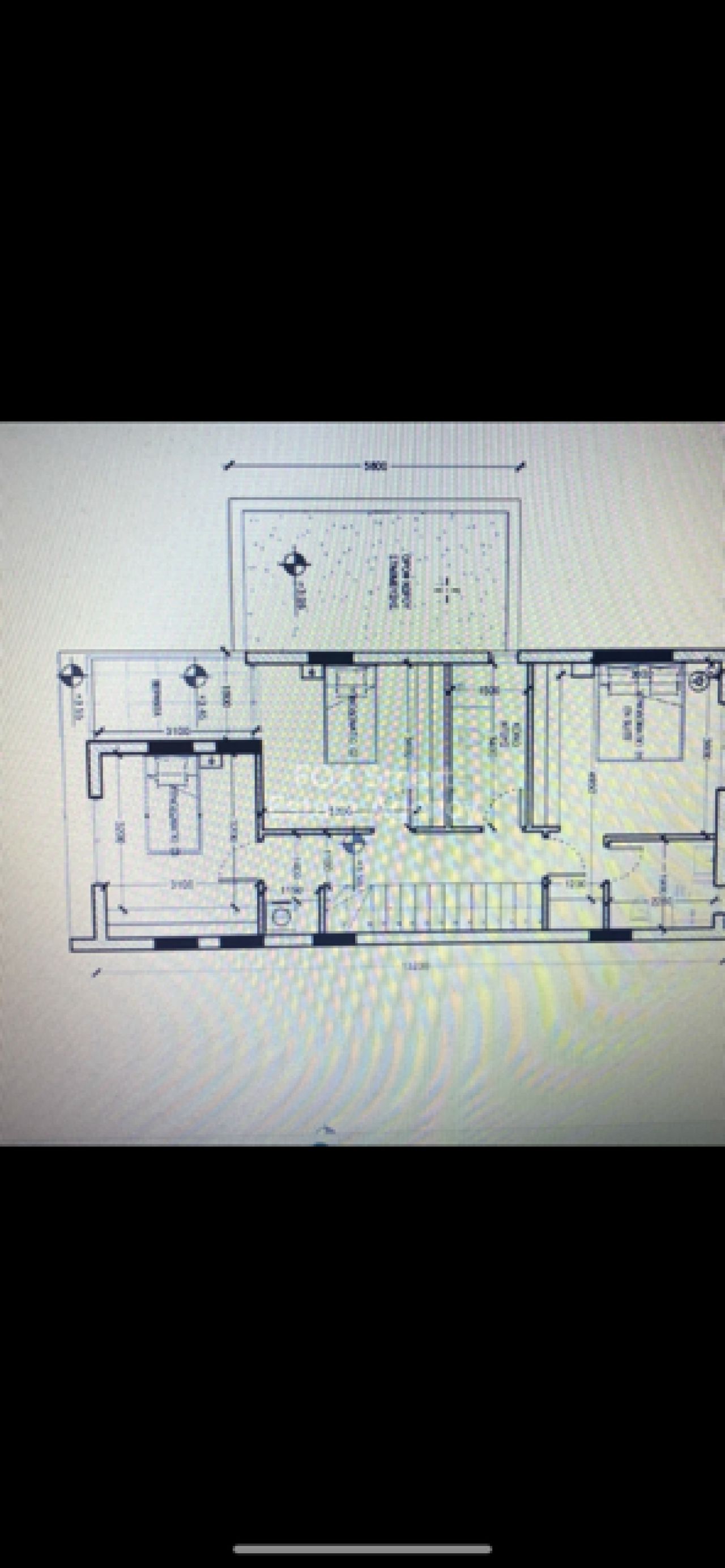
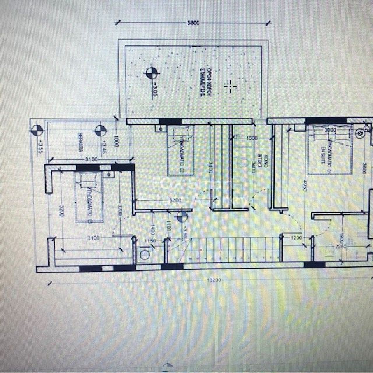
Dati principali 3 Cam. 154 m² 198 m²

Panoramica

Comune Avgorou
Distretto Famagosta
Tipo di immobile Casa Bifamiliare
Camere da letto 3
Superficie costruita 154 m²
Superficie del terreno 198 m²
Riferimento 49431

Descrizione dell'immobile

Situate a Sotira, vicino ad Ayia Napa, queste case spaziose offrono un soggiorno open space, tre camere da letto e parcheggio sicuro.

Punti salienti

Esterno

Giardino Veranda/Porticato

Caratteristiche generali

Non ammobiliato

Spazi

Bagno Magazzino

Sostenibilità / Energia

Energia & Clima
Acqua calda a energia solare
Classe energetica (EPC)
A <= 0.5

Posizione

Apri nelle mappe
Mappa della posizione

Calcolatore mutuo

Tasso d'interesse
Anni
Rata mensile
Interessi totali

Spese di trasferimento

Imposta di trasferimento individuale 6,800
Imposta di trasferimento congiunta 4,675
Imposta di bollo 418

Solo costi indicativi. Consultare un consulente legale e finanziario prima dell'acquisto.

Nelle vicinanze

Aeroporti vicini all'immobile
Spiagge vicine all'immobile
Istruzione
Cantina vinicola

Nessun luogo nelle vicinanze disponibile in questa categoria.

Spostarsi a Avgorou