房产 59166 波利斯, 帕福斯 / ari099n1
Polis一居室,55 m2,阳台,车位,能源A。
价格
170,000
预估月供
585
/月
关键信息
1 卧
55 m²
概览
房产描述
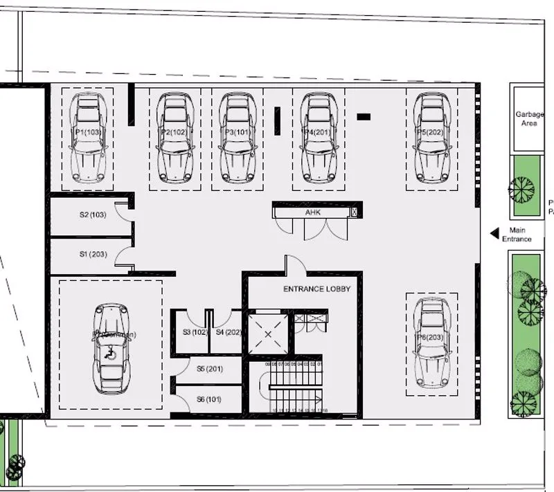
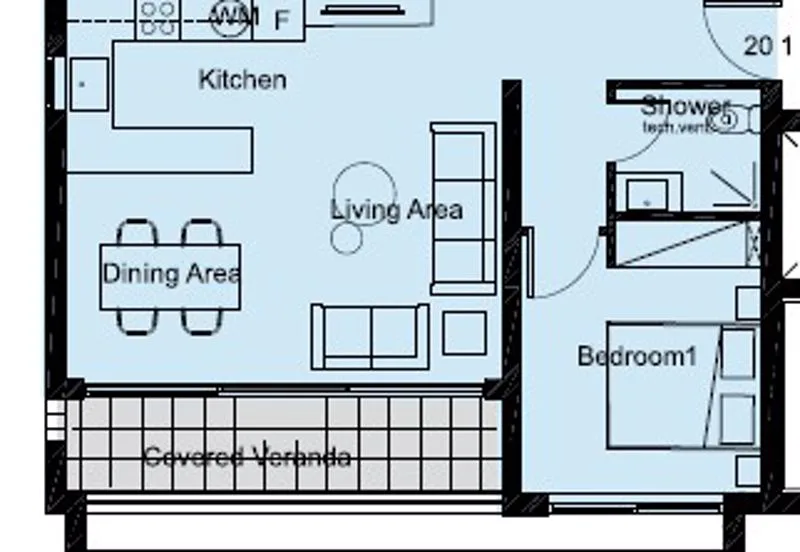
位于Polis的一居室公寓,开放式布局、卧室内置衣柜,提供覆盖车位。建筑面积55 m2,含8 m2封闭阳台,另有0–16 m2无遮阳台空间。距海滩约15分钟,邻近Latchi港口与阿卡马斯自然保护区。产权证(新建程序)与能源等级A,未配家具。
房产亮点
一般功能
可商议的 (
不动产权证
可持续性 / 能源
能源效率评级
能源数据待定
位置
在地图中打开按揭计算器
月供
总利息
过户费用
个人过户费
3,400
联名过户费
2,550
印花税
248
仅供参考费用。购买前请咨询法律和财务顾问。
周边
附近海滩
教育
7.47 km
葡萄酒庄
15.58 km
16.50 km
波利斯 的交通出行
0.74 km
3.19 km
4.07 km
4.50 km
6.31 km
8.60 km
8.64 km
9.55 km