נכס 59051 אנגמי, ניקוסיה / 49701
דירות מודרניות באגקומי התוססת, ניקוסיה.
מחיר
197,000
משכנתא משוערת
678
/חו'
עובדות מרכזיות
1 חד'
50 m²
סקירה כללית
תיאור הנכס
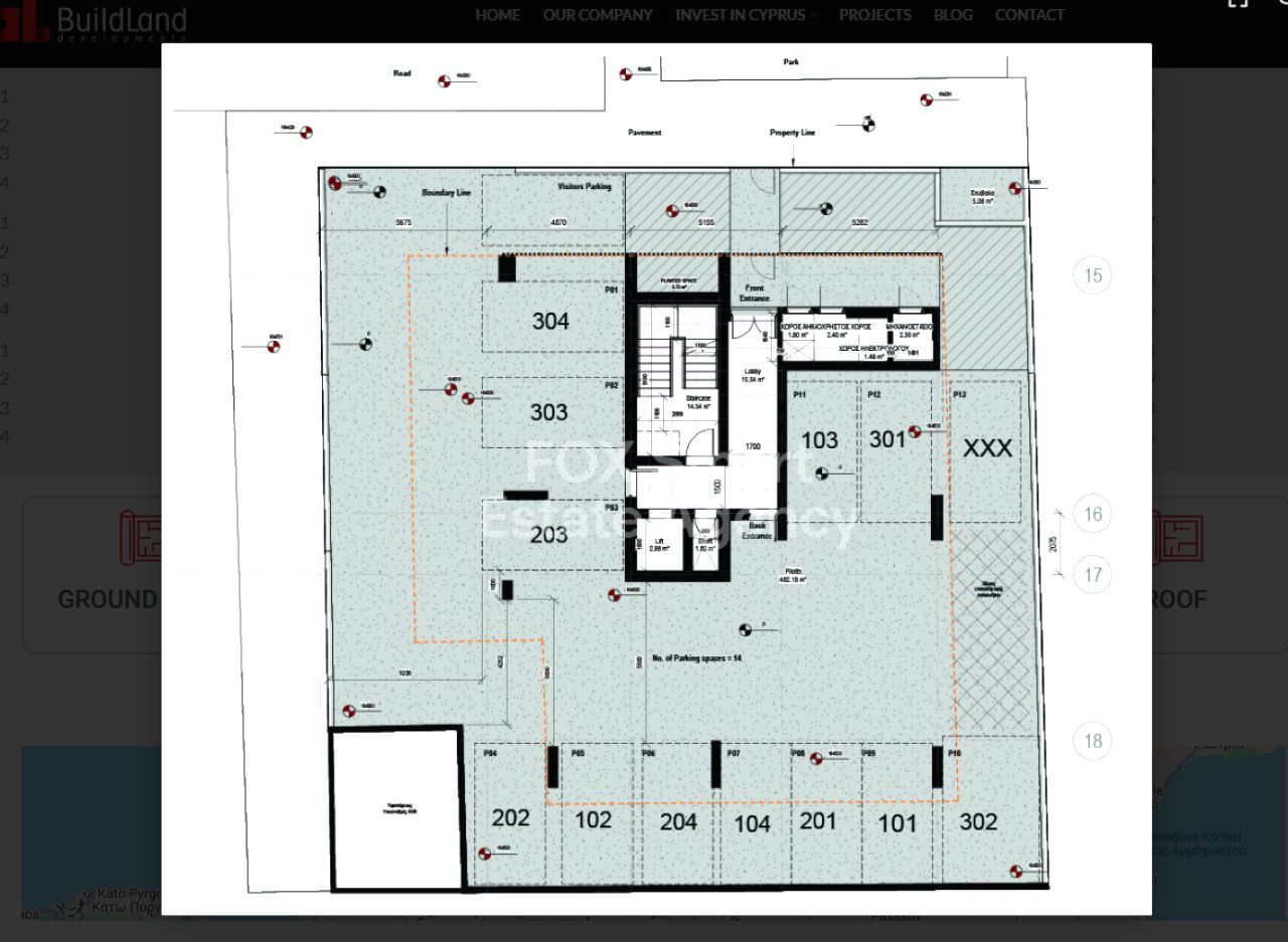
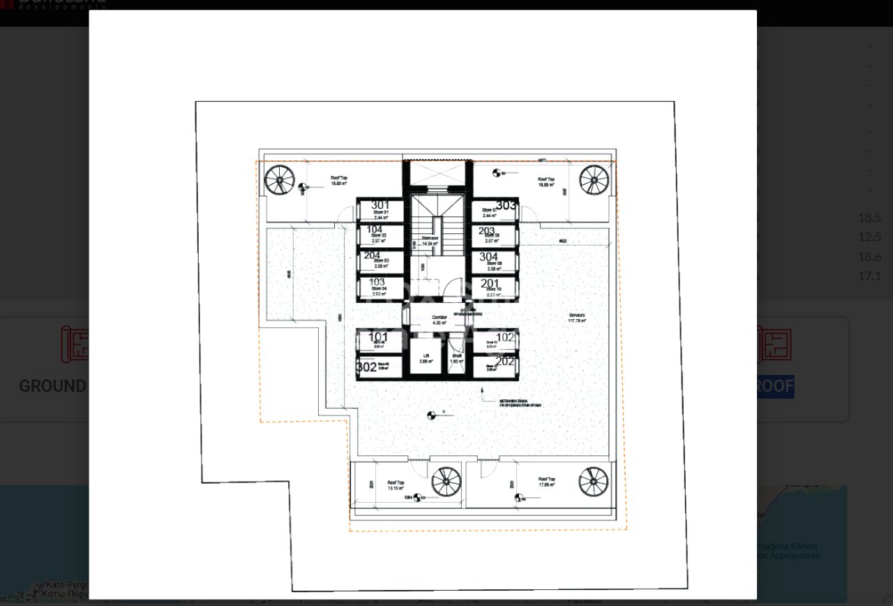
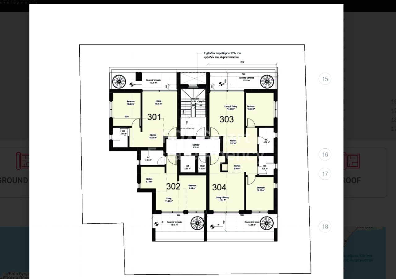
הבניין המודרני בן שלוש הקומות כולל 12 דירות חדשות חדר וסטודיו, עם גימורים איכותיים, אזורים משותפים וחניות מקורות, מושלם לסטודנטים ומקצוענים המחפשים שילוב של נוחות ונגישות.
נקודות בולטות
חוץ
מרפסה/מרפסת
מאפיינים כלליים
לא מרוהט
שירותים
חשמל
מים
מרחבים
מעלה/מעלית
חדר אחסון
קיימות / אנרגיה
דירוג אנרגיה (EPC)
A <= 0.5
מיקום
פתח במפותמחשבון משכנתא
תשלום חודשי
סך הריבית
דמי העברה / עלויות
דמי העברה יחיד
4,480
דמי העברה משותף
3,225
מס בולים
302
עלויות אינדיקטיביות בלבד. יש לאשר ייעוץ משפטי ופיננסי לפני הרכישה.
בסביבה
שדות תעופה בסמיכות לנכס
49.84 km
106.46 km
חופים בסמיכות לנכס
אין מקומות קרובים זמינים בקטגוריה זו.
חינוך
1.72 km
3.15 km
3.26 km
3.72 km
4.47 km
4.75 km
4.77 km
יקב
אין מקומות קרובים זמינים בקטגוריה זו.
תחבורה ב-אנגמי
5.43 km
5.65 km
5.65 km
5.72 km
6.04 km
6.32 km
6.39 km
6.64 km