נכס 59277 ליוודיה, לרנקה / mar013n2
2 חדרי שינה בליוודיה: פרויקט סגור, נוף לים ובריכה.
מחיר
237,000
משכנתא משוערת
816
/חו'
עובדות מרכזיות
2 חד'
76 m²
סקירה כללית
תיאור הנכס
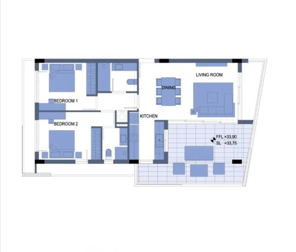
דירה בתהליך בנייה עם 2 חדרי שינה ו‑2 חדרי רחצה בקומפלקס סגור בליוודיה, דקות מהחוף. תכנון פתוח של סלון‑מטבח, מאסטר אנד‑סוויט עם ארונות, 76 m2 שטח פנימי ומרפסת מקורה 19 m2. מתקנים: בריכה משותפת, כושר חיצוני, מעלית, מחסן וחניה מקורה. לפרויקט נוף לים, הכנות לבית חכם ומיזוג נסתר, דירוג אנרגטי A. מסירה באוקטובר 2027; רישום בטאבו במסלול בנייה חדשה.
נקודות בולטות
מאפיינים כלליים
ניתן למשא ומתן
כתבי רשות
בריכה
בריכה קהילתית
קיימות / אנרגיה
דירוג יעילות אנרגטית
נתוני אנרגיה בהמתנה
מיקום
פתח במפותמחשבון משכנתא
תשלום חודשי
סך הריבית
דמי העברה / עלויות
דמי העברה יחיד
6,080
דמי העברה משותף
4,225
מס בולים
382
עלויות אינדיקטיביות בלבד. יש לאשר ייעוץ משפטי ופיננסי לפני הרכישה.
בסביבה
שדות תעופה בסמיכות לנכס
10.52 km
128.40 km
חופים בסמיכות לנכס
5.31 km
5.42 km
7.02 km
7.26 km
8.64 km
8.85 km
9.30 km
10.51 km
חינוך
2.11 km
2.82 km
3.15 km
3.67 km
4.17 km
4.25 km
4.45 km
4.68 km
יקב
אין מקומות קרובים זמינים בקטגוריה זו.
תחבורה ב-ליוודיה
0.71 km
3.80 km
4.30 km
4.41 km
4.65 km
4.97 km
5.39 km
5.46 km