נכס 59119 טאלה, פאפוס / lep020r1
דירה חדר שינה אחד, 62 m2, Title Deeds, מרפסת 7 m2, מרפסת וחניה.
מחיר
148,000
משכנתא משוערת
510
/חו'
עובדות מרכזיות
1 חד'
62 m²
סקירה כללית
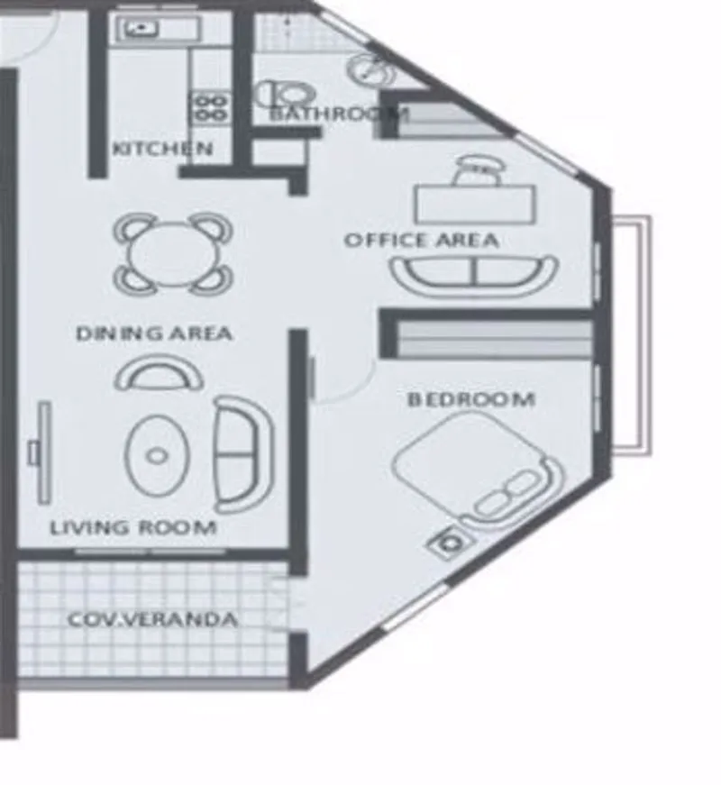
תיאור הנכס
דירת חדר שינה אחת בטאלה עם Title Deeds. שטח פנימי 62 m2 ועוד מרפסת מקורה של 7 m2. כולל סלון/פינת אוכל פתוח, מטבח מאובזר, חדר שינה עם ארונות קיר, חדר רחצה משפחתי, הכנה למיזוג אוויר, מרפסת פרטית וחנייה. הנכס מוצע ללא ריהוט. כ־15 דקות עד החוף וכ־36 דקות עד שדה התעופה פאפו.
נקודות בולטות
מאפיינים כלליים
מכירה מחודשת
כתבי רשות
קיימות / אנרגיה
אנרגיה ואקלים
חסכוני באנרגיה
מיקום
פתח במפותמחשבון משכנתא
תשלום חודשי
סך הריבית
דמי העברה / עלויות
דמי העברה יחיד
2,850
דמי העברה משותף
2,220
מס בולים
215
עלויות אינדיקטיביות בלבד. יש לאשר ייעוץ משפטי ופיננסי לפני הרכישה.
בסביבה
שדות תעופה בסמיכות לנכס
17.21 km
130.19 km
חופים בסמיכות לנכס
4.64 km
4.65 km
5.37 km
5.40 km
5.46 km
6.26 km
7.05 km
7.09 km
חינוך
0.36 km
3.01 km
4.52 km
5.10 km
6.24 km
7.24 km
7.60 km
יקב
3.89 km
9.24 km
9.71 km
10.55 km
11.87 km
14.34 km
16.22 km
19.50 km
תחבורה ב-טאלה
1.17 km
1.25 km
1.89 km
4.39 km
4.48 km
5.93 km
6.23 km
6.30 km