Właściwość 2201 Latsia, Nikozja / 49328
Nowoczesny Budynek 3-piętrowy Z Energooszczędnymi Mieszkaniami.
Na Sprzedaż • Oferta
279,000€
Szacowana hipoteka
/miesiąc
3
łóżka
2
kąpiele
102
m2
Przegląd
Opis właściwości
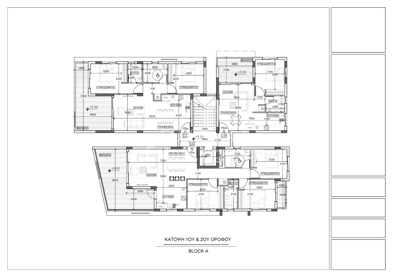
To mieszkanie na pierwszym piętrze ma 102 m² powierzchni wewnętrznej, trzy przestronne sypialnie i nowoczesny design, idealne dla rodzin szukających komfortu i wygody w Latsii.
Zrównoważony rozwój
Panele słoneczne/ fotowoltaiczne
tak
Ocena wydajności energetycznej
Najważniejsze cechy nieruchomości
Balkon
Weranda/Ganek
Nieumeblowane
energii elektrycznej
Woda
Hol
Łazienka
Otwarty plan
Pokój jadalniowy
Przechowalnia
Winda
Lokalizacja
40.32 kms
110.00 kms
6.83 kms
7.56 kms
8.18 kms
8.43 kms
8.60 kms
9.26 kms
9.30 kms
9.52 kms
4.18 kms
5.52 kms
5.93 kms
6.67 kms
8.57 kms
8.95 kms
9.12 kms
9.14 kms
9.15 kms
9.22 kms
9.38 kms
9.57 kms
9.61 kms
Opłaty za przelew
Opłaty za przelew dla osób fizycznych
7,760 €
Opłaty za przelew na wspólne nazwiska
5,275 €
Podatek od czeków
466 €