Property 58419 Strovolos, Nicosia / 49655
Privileged rectangular plot in a high-demand area.
Price
189,000
Estimated mortgage
651
/mo
Key facts
625 m²
Overview
Property Description
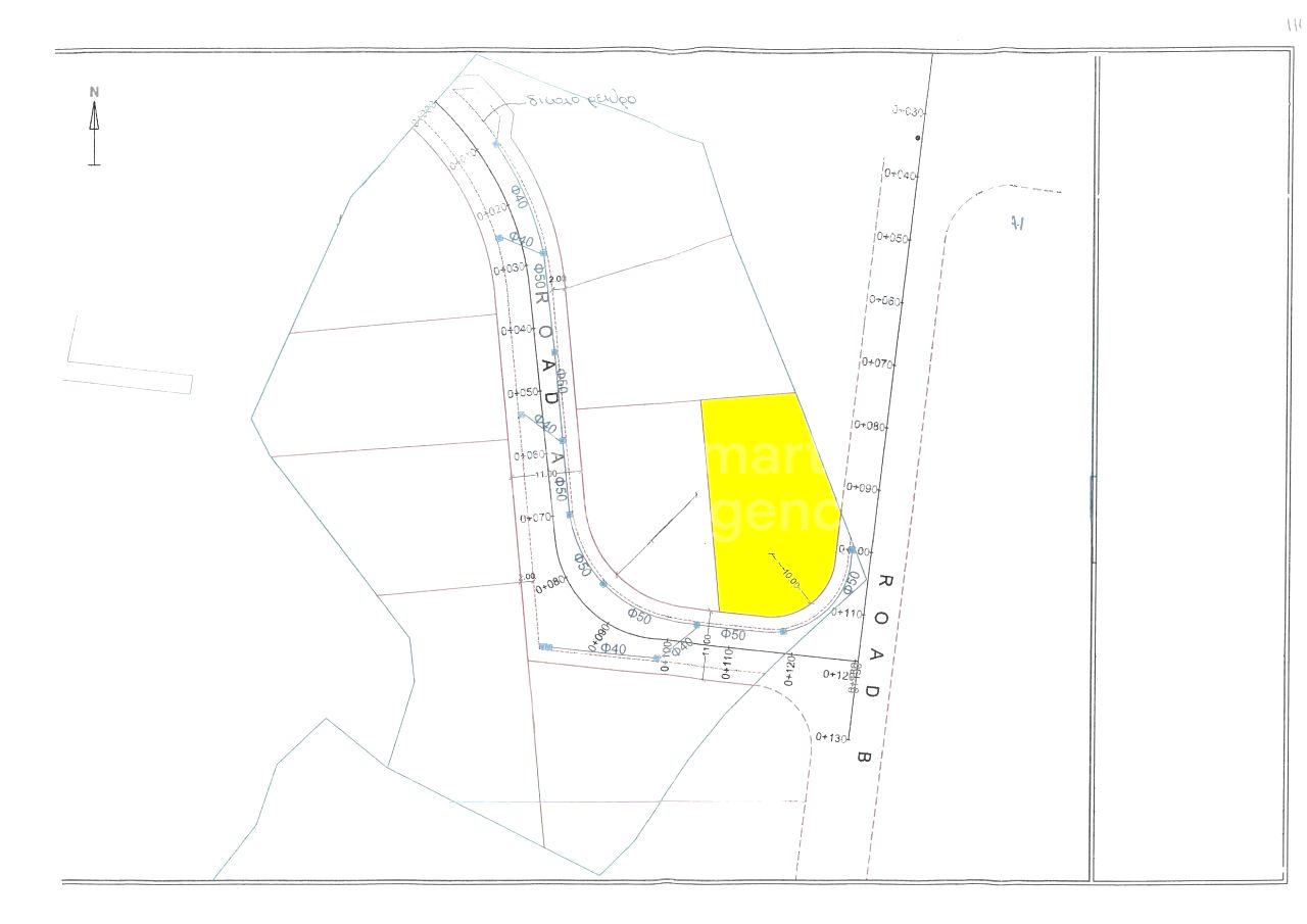
Privileged rectangular plot, Located in popular area of STROVOLOS in between GSP stadium and American Heart hospital
Total area 625sqm with facade 30.7meters.
Building factor 80%, coverage rate 45%. .Popular area with high demand / easy and quick access to the center of Nicosia.
Suitable for developers and individuals.
Total area 625sqm with facade 30.7meters.
Building factor 80%, coverage rate 45%. .Popular area with high demand / easy and quick access to the center of Nicosia.
Suitable for developers and individuals.
Property Highlights
General Features
Unfurnished
Services
Electricity
Water
Sustainability / Energy
Energy efficiency rating
Energy data pending
Location
Open in mapsNearby
Airports near the property
46.64 km
108.08 km
Beaches near the property
No nearby places available in this category.
Education
2.72 km
2.90 km
3.60 km
3.78 km
4.09 km
4.32 km
Winery
No nearby places available in this category.
Getting around in Strovolos
2.98 km
4.99 km
5.00 km
5.10 km
5.30 km
5.40 km
5.54 km