Bien immobilier 32543 Livadia, Larnaca / box001n2
Appartement de 2 chambres à Livadia, Larnaca - Nouvelle construction, proche des commodités, adapté à la résidence permanente.
Prix
190,000
Prêt estimé
654
/mois
Données clés
2 Ch.
75 m²
Aperçu
Description du bien
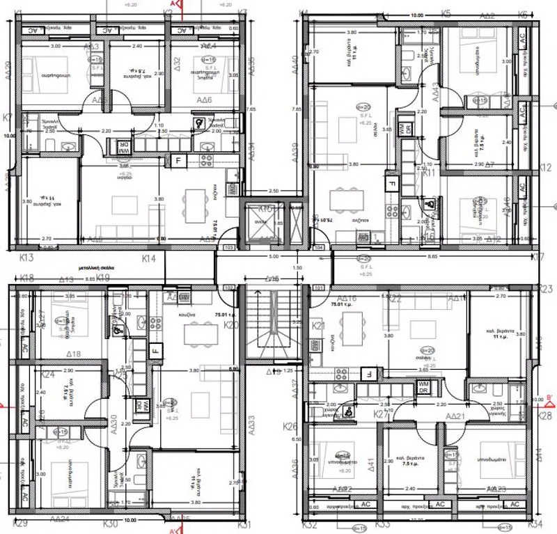
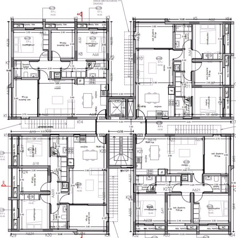
Cet appartement de deux chambres situé à Livadia, à Larnaca, fait partie d'un nouveau développement de 12 unités réparties sur trois étages. La propriété dispose d'une chambre principale avec salle de bains privative, d'un salon décloisonné et d'un parking couvert. Situé à proximité des commerces et commodités locaux, l'appartement se trouve à quelques pas de la mer et à quelques minutes en voiture de la plage. Le village de Livadia offre un cadre paisible et possède une riche histoire de production de vannerie. Avec un design moderne et une efficacité énergétique, cette propriété convient à la résidence permanente à Chypre et est soumise à la TVA. Il s'agit d'une propriété hors plan dont la date d'achèvement reste à confirmer.
Points forts
Fonctionnalités générales
Négociable
Titres de Propriété
Durabilité / Énergie
Classe énergétique
Données énergétiques en attente
Localisation
Ouvrir dans les cartesSimulateur de prêt immobilier
Mensualité
Intérêts totaux
Frais de transfert
Droits de mutation individuels
4,200
Droits de mutation conjoints
3,050
Droits de timbre
288
Coûts indicatifs uniquement. Consultez un conseiller juridique et financier avant l'achat.
À proximité
Aéroports à proximité
10.52 km
128.40 km
Plages à proximité
5.31 km
5.42 km
7.02 km
7.26 km
8.64 km
8.85 km
9.30 km
10.51 km
Éducation
2.11 km
2.82 km
3.15 km
3.67 km
4.17 km
4.25 km
4.45 km
4.68 km
Domaine viticole
Aucun lieu à proximité dans cette catégorie.
Se déplacer à Livadia
0.71 km
3.80 km
4.30 km
4.41 km
4.65 km
4.97 km
5.39 km
5.46 km