Nieruchomość 59273 Kiti, Larnaka / gri006n2p/201
Penthouse 2 sypialnie w Kiti, 77 m2, taras na dachu i miejsce parkingowe.
Cena
235,000
Szacowana rata kredytu
809
/mies.
Kluczowe dane
2 Syp.
77 m²
Przegląd
Opis nieruchomości
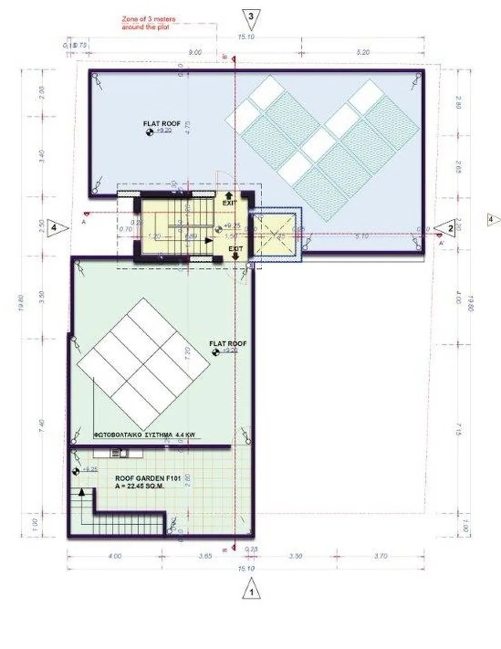
Oferta off-plan: penthouse w Kiti, Larnaka, z aktami własności (nowa budowa). Wnętrze 77 m2, zadaszony balkon 10 m2 oraz prywatny taras na dachu 23 m2. Główna sypialnia z łazienką en-suite i zabudowanymi szafami, otwarta przestrzeń dzienna z kuchnią, podwójne szyby i przygotowanie do montażu klimatyzacji. Wyposażenie: 3 kW instalacja fotowoltaiczna, winda, zadaszone miejsce parkingowe 12 m2 i schowek 2 m2. Zakończenie budowy planowane na lipiec 2028.
Najważniejsze cechy
Cechy ogólne
Do negocjacji
Tytuły Własności
Zrównoważony rozwój / Energia
Klasa energetyczna
Dane energetyczne oczekują
Lokalizacja
Otwórz w mapachKalkulator kredytu hipotecznego
Miesięczna rata
Łączne odsetki
Opłaty za przeniesienie własności
Opłata za przeniesienie własności (indywidualnie)
6,000
Opłata za przeniesienie własności (wspólnie)
4,175
Podatek od czynności cywilnoprawnych
378
Tylko orientacyjne koszty. Przed zakupem należy skonsultować się z prawnikiem i doradcą finansowym.
W pobliżu
Lotniska w pobliżu nieruchomości
6.12 km
119.93 km
Plaże w pobliżu nieruchomości
4.50 km
5.01 km
5.02 km
5.43 km
6.94 km
7.48 km
7.91 km
8.68 km
Edukacja
3.83 km
10.74 km
10.82 km
10.91 km
11.84 km
12.54 km
12.99 km
Winiarnia
Brak pobliskich miejsc w tej kategorii.
Dojazd w Kiti
3.71 km
5.35 km
7.86 km
8.59 km
9.78 km
10.51 km
10.56 km
10.57 km